發布日期:2024-04-25 09:04:31 瀏覽次數:518次
房子小,收納難”
東西越來越多,小戶型空間越來越小,怎么收拾都顯得擁擠。
在寸土寸金的城市中,一個收納功能強大的戶型,是提高生活品質和舒適度的基礎。合理的規劃和方便的存取,才是家居收納的王道。
一個戶型是否具備良好的收納條件,其實是有總的幾個標準是可以參考的:
? 戶型收納布局的各處均布;? 收納空間應該占據整個房屋面積的12%以上;? 立體集成,收納家具不宜過多、零碎;? 二八原則,
收納應有藏有露,展示的物品和隱藏的物品比例宜為2:8;......
如果以上的各個收納標準都能夠滿足,基本上這就算的上一個優秀的戶型。

收納空間其實就是我們所講的空間利用率。一個房子的空間利用率大小是決定了這個房子是否能夠滿足你的居住需求。
整個戶型的收納空間占比不低于12%,相對于100平方米左右的中小戶型建議收納系統的占地為12%左右,至少不能低于10%。
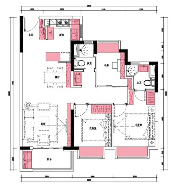
在標紅的區域也可以看出,好的戶型收納,是在各個區域都有專屬的收納空間,講究各處均布的方式。


為了能在約85㎡的戶內面積下解決三代同堂的收納難題,該戶型的收納面積達到了23㎡,收納占比更是高達27%。
一般房間內,玄關、餐廳、廚房、客廳、臥室、衛浴、陽臺……這些區域,我們都需要有一個專門的收納空間。
收納空間和使用空間,基本上就是一對一的對應關系,在一個區域進行合理規劃,便于存取。
首先我們分區域進行拆解,這些區域的收納空間應該怎么做。
① 戶型再小也要有玄關
玄關是一個家的門面。
如果一開門,映入眼簾的就是亂七八糟的鞋子,還有一堆鑰匙、錢包和各種雜物。那在進門的這一刻,心情就不會很舒暢。
并未放棄玄關,而是選擇讓玄關局部占用次臥空間形成嵌柜空間。

柜體空間的容積居然達到1.64立方米,足夠將日常出入常用的鞋子、雨傘、部分衣物,甚至小智能家居等物品收入柜體,使玄關空間更為有序美觀。


從實用的角度看,玄關的重要角色是“放鞋柜的”,但隨著戶型設計的不斷研發,又從單單的鞋柜變成了一個綜合性的步入式衣帽鞋柜。

這個95㎡的小戶型,南向三開間,貫通式的大陽臺,開間5.6m。
這個戶型的整體空間被重新解構,在玄關、廚房、主臥、衛浴、兒童房、陽臺6個重點功能區域進行墻體內嵌式收納設計,設置了10768升的收納空間。
從玄關收納到主臥收納,從衛浴收納到廚房收納,打造出“3.5次尖叫”的收納系統,讓每一個家庭都能在有序的生活美感中翩翩起舞。
玄關收納柜,內部做了上中下分區,相當于72個登機箱的容量,包含了鞋柜、衣柜、收納盒、置物柜、換鞋凳和一面全身鏡。
鞋柜可以容納72雙鞋子,內部隔板可自由調節高度,高跟鞋、靴子等皆可歸置收納。
衣柜和穿衣鏡的設置很妙,出門時則可以在門口換上外套,照照鏡子,整理下儀表再出門。
抽屜式收納盒和置物柜則是點睛之筆。零錢、開瓶器、梳子、發票等等家里的小物件皆可放進去,用的時候可靈活拿取。


72㎡3房2廳戶型,玄關1724升,相當于49個登機箱。

擁有了強大的收納功能,玄關就會整潔很多,不管我們什么時候回家,推開門的一瞬間,心情一定會輕松很多。
② 餐客廳一體化
小戶型客餐廳通常是連在一起,而定制餐邊柜效收納起客廳的雜物,空間更顯大。

餐邊柜配上卡座,卡座緊貼墻壁為餐廳留出更多空間。

一體化橫廳設計,居住者推門而入,進入橫廳,空間自然向外界延展。而 05 面寬的利用,提升了室內空間與自然空間的流動性。
橫廳兩端分別為兩組功能強大的收納柜體,其中電視柜收納量約 1080L,相當于 36.9 個登機箱的收納容積,藏露有度,收納與展示并存。
想要餐客廳真正的“顯大”,秘訣就是:? 可以活動的家居盡量不要太大,餐客廳座椅有玄機;
? 固定收納的柜子要盡量大;
通過客廳-餐廳處的立面、沙發的整體化處理,不僅可以使功能空間面積變得更大,還可以使得空間在視覺上連貫延展,視覺上形成橫廳之感,讓空間看起來更加開闊。

通過客廳-餐廳處的立面、沙發的整體化處理,不僅可以使功能空間面積變得更大,還可以使得空間在視覺上連貫延展,視覺上形成橫廳之感,讓空間看起來更加開闊。
在客餐廳選擇特別定制的沙發卡座,隱秘地釋放出更大的空間,滿足收納的同時,保證室內動線的流暢性。
即沿墻布置的客餐廳沙發座椅底部抬高40cm,增加柜體作為客餐廳收納空間,既可以滿足客廳會客休閑、餐廳就餐需求,還可以滿足儲物需求,一舉多得,發揮“家具一物多用”的特點。

③ 廚房小戶型收納,廚房是比較重要的一個地方,東西比較多,也比較雜,所以進行分類和利用櫥柜里的各種空間,是非常重要的。
? 將空間沿墻部分充分利用作為收納,可最大限度的節省空間;? 設計嵌入式儲藏柜,進一步提升廚房收納空間,鍋碗瓢盆等皆可納入其中,
讓廚房整體更整潔;? 角落是常被人忽略的地方,想最大化地利用廚房收納空間,可以從角落著手;? 島臺收納可提高備餐的速度,使烹飪更有樂趣;
即使不常做飯也能很快找到各類材料和廚具。

廚房一直對收納量有極大的需求,因此對空間的高效靈活利用也成為品質升級的重要考量因素。
衛生間的收納空間主要是在浴室內。浴室作為家居裝飾,要放的東西真的不少!
設置內嵌式的置物架,擺放洗漱用品等。以及抽屜式收納等,如圖:
如果是小戶型,陽臺的收納就顯得極其重要,純粹作為曬晾空間未免有點浪費。
可以增加陽臺的使用功能。每個人都有自己的興趣愛好,戶型最大亮點之一的個性化百變陽臺,既可以納入客廳整體設計,
也能保留為個性化的多變空間,非常適合年輕人發揮。進深約1.8m,進深約6.6m,不僅可以通過收納系統解決家政陽臺功能,
既不浪費房屋使用面積、同時滿足生活陽臺的功能需求,打造屬于自己的“私家花園”。

收納系統將烘干機和洗衣機疊放在一起,更省空間;還設置了擺放濕衣籃的可推拉臺面。
臥室的收納區有大件衣物掛置區、折疊衣服放置區、被褥及枕頭存放區、褲格、帽格、零物存放區等,大容量抽屜的設計,使臥室容量擴充,大大提升生活舒適感

主臥面寬約3.7米,標準衣柜下男女分區各約2m,可以放置約200件當季衣物+約150件過季衣物+約10床被褥+約10個箱包+約10個帽子+約10個收納盒
(因具體收納物品的規格尺寸不同而可收納的數量有所差異),足夠兩個人使用。